Villier - PARIS XVII

architecture d'interieur

Année : 2020
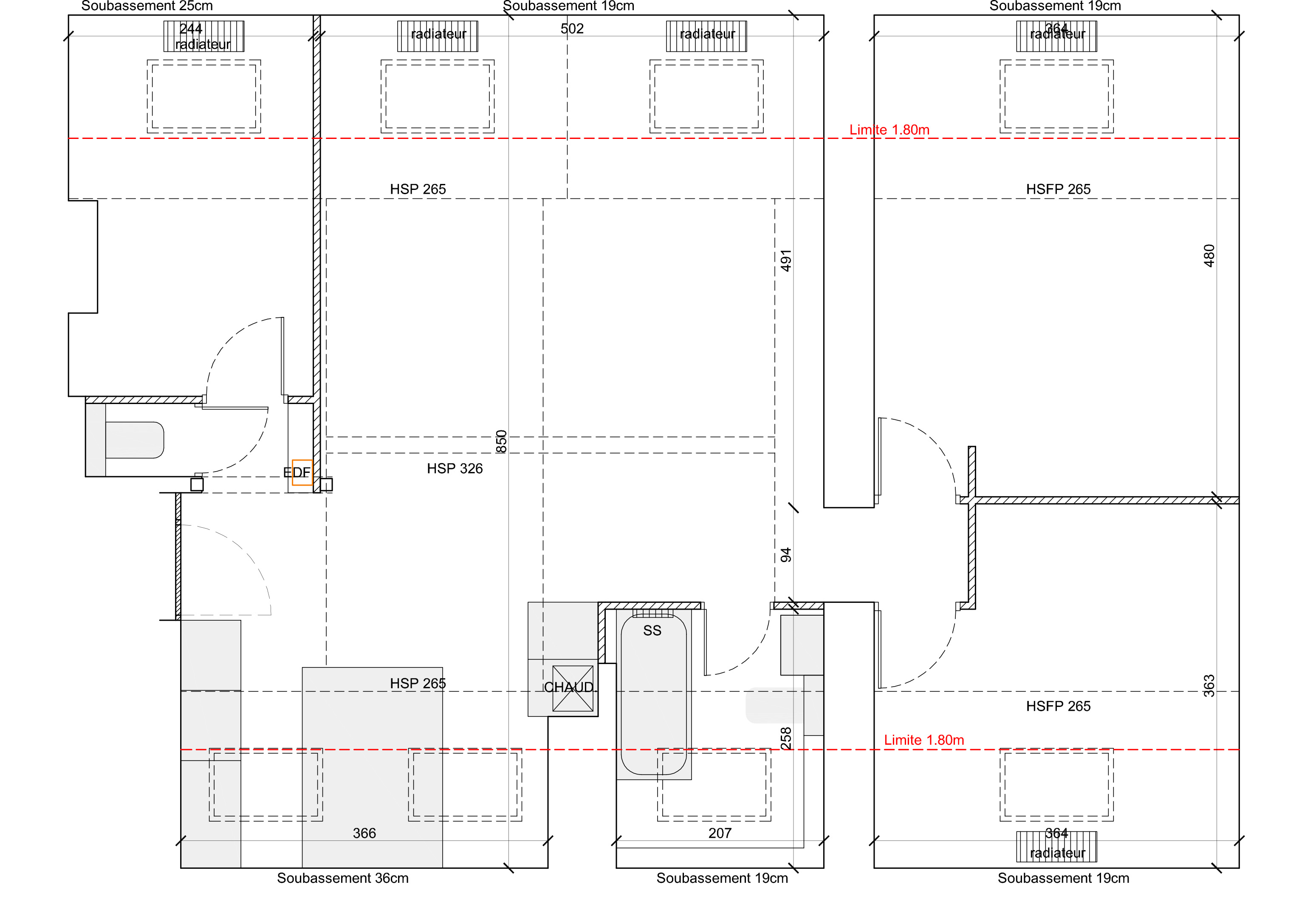
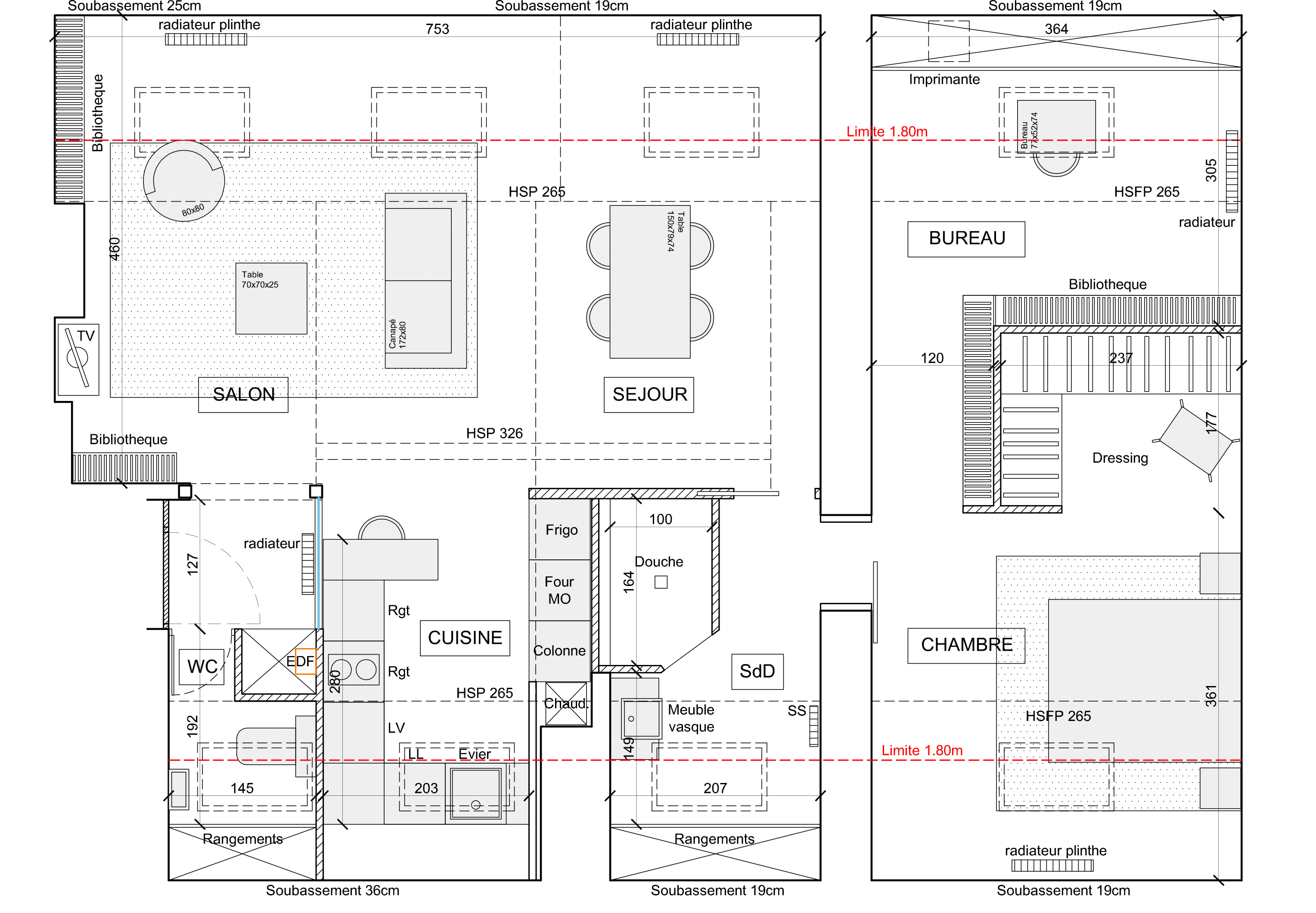
Surface : 90m²
Mission complète
Budget : 110 000 euros HT

Rénovation totale d'un appartement sous combles de 90m² dans le 17ème arrondissement de Paris. Conception sur mesure d'une cuisine ouverte sur le séjour avec mur verrière sur l'entrée. Création de meubles de rangements / étagère pour le salon et salle à manger.
L'espace nuit / travail est composée d'une salle de bain ouverte avec douche maçonnée et rangement sous comble. La chambre est épurée avec un dressing ouvert et un accès sur l'espace de bureau. Une bibliothèque s'enroule autour de l'emprise du dressing pour cloisonner l'espace de bureaux. Des rangements sur mesure ont été conçu sous toiture pour optimiser l'espace et le rangement.

X